Puerta Plegable Plus




- Descripción
- Datos técnicos
- Ensayos
Descripción
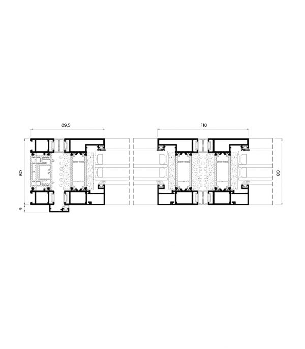
Separa ambientes y unifica espacios con este sistema de puerta plegable de 80 mm de profundidad de marco. Esta evolución de la serie Plegable ofrece un excelente rendimiento térmico y acústico, gracias a su rotura de puente térmico de 45 mm y una capacidad de acristalamiento de hasta 48 mm. Además, presenta un nudo central reducido de 110 mm que permite maximizar la superficie acristalada, llenando de luz natural los espacios interiores.
Posibilidades
» Accesibilidad
» Herraje de seguridad
Datos técnicos
» Acristalamiento
Máx. 48 mm
Mín. 25 mm
» Posibilidades de apertura
Apertura interior
De 1 a 14 hojas
Apertura exterior
De 1 a 14 hojas
Posibilidad de encuentros a 90º sin parteluz
» Secciones
Marco 80 mm
Hoja 80 mm
» Espesor de perfilería
1,8 mm
» Longitud varilla de poliamida
Marco 45 mm
Hoja 45 mm
» Dimensiones máx. hoja
Ancho (L) 1200 mm
Alto (H) 3000 mm
» Peso máx. hoja
120 Kg
Consultar peso y dimensiones máximas según tipología
» Acabados
Posibilidad bicolor
Lacado colores (RAL, moteados y rugosos)
Lacado imitación madera
Lacado antibacteriano
Anodizado
Ensayos
» Transmitancia
Uw ≥ 0,8 (W/m2K)
Consultar tipología, dimensión y vidrio
» Permeabilidad al aire
(UNE-EN 12207) Clase 4
» Estanqueidad al agua
(UNE-EN 12208) Clase E750
» Resistencia al viento
(UNE-EN 12210) Clase C3
» Ensayo de seguridad PAS24
Apto
» Aperturas y cierres repetidos
50.000 ciclos (Hoja de paso)
25.000 ciclos (Hojas pares)
Ensayo AEV 3 hojas. Configuración 321. 2,70 x 2,50 mm
Resistencia a aperturas y cierres repetidos: ensayo realizado según norma UNE-EN 1191
Ensayo de referencia 3 hojas. Configuración 321. 3,73 x 2,50 m












