Puerta Corredera Automática








- Descripción
- Datos técnicos
Descripción
Sistema de puerta de hojas correderas con apertura automática, diseñada para resolver accesos de mucho tránsito (oficinas, centros comerciales, hospitales…) ya que garantiza la fluidez en la entrada y salida de los usuarios y la seguridad en situaciones de emergencia.
Posibilidades
» Automatización
» Accesibilidad
Datos técnicos
» Acristalamiento
Máx. 30 mm
Mín. 3 mm
» Posibilidades de apertura
Apertura automática
Corredera 1 hoja y fijo
Corredera 2 hojas y 2 fijos
Practicable automática
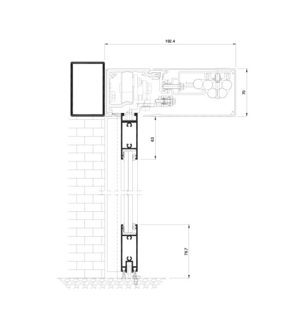
» Secciones
Marco 45 mm
Hoja 45 mm (motor EC-drive)
Hoja 25 mm (motor slimdrive)
» Espesor de perfilería
2,0 mm
» Dimensiones máx. hoja
Ancho (L) 2000 mm
Alto (H) 3000 mm
» Peso máx. hoja
120 Kg
Consultar peso y dimensiones máximas según tipología
» Acabados
Posibilidad bicolor
Lacado colores (RAL, moteados y rugosos)
Lacado imitación madera
Lacado antibacteriano
Anodizado











