Fachada TPV 52








- Descripción
- Datos técnicos
- Ensayos
Descripción
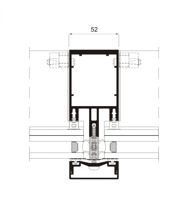
Sistema de muro cortina en el que se combinan los sistemas TP 52 y SG 52. El vidrio se fija en las juntas verticales con el binomio presor-tapeta , resaltando la trama en este sentido, y en las horizontales ,mediante el perfil U y las grapas.
Certificación británica
» CWCT
Posibilidad
» Embutir manilla Arch Invisible en el perfil
Datos técnicos
» Acristalamiento
Máx. 64 mm
Mín. 6 mm
» Posibilidades de apertura
Apertura exterior
Proyectante horizontal
» Sección vista interior
Montante 52 mm
Travesaño 52 mm
» Espesor perfilería
Montante 2,1 y 3,0 mm
Travesaño 2,1 mm
» Tapetas
Tapeta elíptica de 85 mm de profundidad
Tapeta en H de 34 mm de profundidad
Tapeta rectangular: 14, 19, 100
y 145 mm de profundidad
Tapeta plana
» Dimensiones máx. / mín. en aperturas
Ancho (L) 2500 - 500 mm
Alto (H) 2500 - 650 mm
» Peso máx.
180 kg Apertura proyectante
750 Kg Fijos
Consultar peso y dimensiones máximas según tipología
» Acabados
Posibilidad bicolor
Lacado colores (RAL, moteados y rugosos)
Lacado imitación madera
Lacado antibacteriano
Anodizado
Ensayos
» Transmitancia
Ucw ≥ 0,6 (W/m2K)
» Permeabilidad al aire
(UNE-EN 12207) Clase AE
» Estanqueidad al agua
(UNE-EN 12208) Clase RE1500
» Resistencia al viento*
APTO
» Certificación británica
CWCT
Ensayo de referencia AEV 3,00 x 3,50 m
*Carga de diseño 2000 Pa-Carga de seguridad 3000 Pa












