Fachada ST 52








- Descripción
- Datos técnicos
- Ensayos
Descripción
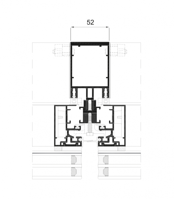
En este sistema de fachada, el vidrio se adhiere con silicona estructural a un bastidor de aluminio, fijándose ese conjunto a la perfilería portante. Presenta una estética exterior solo vidrio de muro de fosa abierta con una junta de EPDM instalada perimetralmente en cada módulo para garantizar la estanqueidad. El cierre de la fosa se logra con un solape entre las juntas.
Certificación británica
» CWCT
Datos técnicos
» Acristalamiento
Máx. 38 mm
Mín. 6 mm
» Posibilidades de apertura
Apertura exterior
Proyectante horizontal
» Sección vista interior
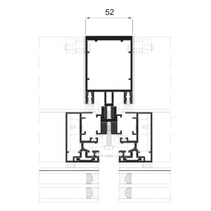
Montante 52 mm
Travesaño 52 mm
» Espesor perfilería
Montante 2,1 y 3,0 mm
Travesaño 2,1 mm
» Dimensiones máx. / mín. en aperturas
Ancho (L) 2500 - 500 mm
Alto (H) 2500- 650 mm
» Peso máx.
180 kg Apertura proyectante horizontal
350 Kg Fijos
Consultar peso y dimensiones máximas según tipología
» Acabados
Posibilidad bicolor
Lacado colores (RAL, moteados y rugosos)
Lacado imitación madera
Lacado antibacteriano
Anodizado
Ensayos
» Transmitancia
Ucw ≥ 0,7 (W/m2K)
» Permeabilidad al aire
(UNE-EN 12207) Clase AE
» Estanqueidad al agua
(UNE-EN 12208) Clase RE750
» Resistencia al viento*
APTO
» Certificación británica
CWCT
Ensayo de referencia AEV 3,00 x 3,50 m
*Carga de diseño 2000 Pa-Carga de seguridad 3000 Pa












