Fachada SST 52








- Descripción
- Datos técnicos
- Ensayos
Descripción
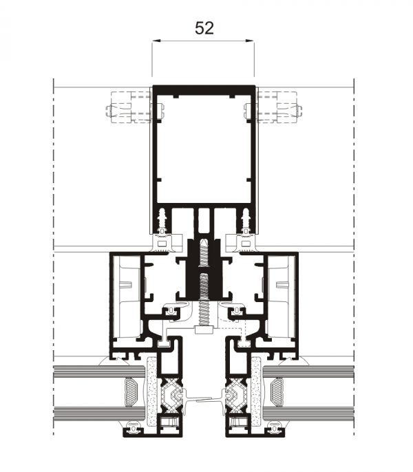
El vidrio se sujeta mecánicamente a un bastidor perimetral mediante un perfil embellecedor exterior sin necesidad de aplicar silicona estructural como en el sistema ST 52. También presenta estética exterior de muro de fosa abierta, en este caso con un recercado de aluminio sobre el vidrio. La junta de EPDM instalada perimetralmente en cada módulo actúa como primera barrera de estanqueidad. El cierre de la fosa se logra con un solape entre las juntas.
Certificación británica
» CWCT
Datos técnicos
» Acristalamiento
Máx. 28 mm
Mín. 6 mm
» Posibilidades de apertura
Apertura exterior
Proyectante horizontal
» Sección vista interior
Montante 52 mm
Travesaño 52 mm
» Rotura de puente térmico
18 mm
» Espesor perfilería
Montante 2,1 y 3,0 mm
Travesaño 2,1 mm
» Dimensiones máx. / mín. en aperturas
Ancho (L) 2500 - 500 mm
Alto (H) 2500 - 650 mm
» Peso máx.
180 kg Apertura proyectante horizontal
350 Kg Fijos
Consultar peso y dimensiones máximas según tipología
» Acabados
Posibilidad bicolor
Lacado colores (RAL, moteados y rugosos)
Lacado imitación madera
Lacado antibacteriano
Anodizado
Ensayos
» Transmitancia
Ucw ≥ 0,8 (W/m2K)
» Permeabilidad al aire
(UNE-EN 12207) Clase AE
» Estanqueidad al agua
(UNE-EN 12208) Clase RE750
» Resistencia al viento*
APTO
» Certificación británica
CWCT
Ensayo de referencia AEV 3,00 x 3,50 m
*Carga de diseño 2000 Pa-Carga de seguridad 3000 Pa












