COR 80 Industrial








- Descripción
- Datos técnicos
- Ensayos
Descripción
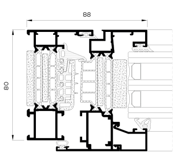
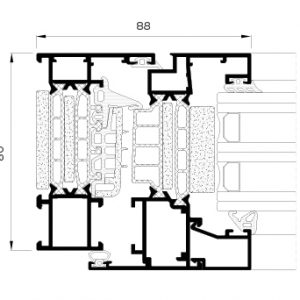
Con 80 mm de profundidad de marco, la serie COR 80 Industrial responde a las exigencias climáticas más severas gracias a su rotura de puente térmico con poliamidas tubulares de 45 mm y la incorporación de perfi les de poliolefina reticulada tanto en el galce del vidrio como en el interior de marco y hoja.
Posibilidades
» Herraje de seguridad
» Herraje oculto
» Drenaje oculto
» Estor integrado junquillo
Datos técnicos
» Acristalamiento
Máx. 73 mm
Mín. 16 mm
» Posibilidades de apertura
Apertura interior
Practicable
Oscilobatiente
Osciloparalela
Abatible
Apertura exterior
Practicable
Proyectante deslizante
» Secciones
Marco 80 mm
Hoja 88 mm
» Espesor de perfilería
Ventana 1,5 mm
Balconera 1,6 mm
» Longitud varilla de poliamida
45 mm
» Dimensiones máx. hoja
Ancho (L) 1500 mm
Alto (H) 2600 mm
» Peso máx. hoja
160 Kg
» Posibilidades estéticas
Hoja: recta / Junquillo: recto y curvo
Consultar peso y dimensiones máximas según tipología
» Acabados
Posibilidad bicolor
Lacado colores (RAL, moteados y rugosos)
Lacado imitación madera
Lacado antibacteriano
Anodizado
Ensayos
» Transmitancia
Uw ≥ 0,71 (W/m2K)
Consultar tipología, dimensión y vidrio
» Aislamiento acústico
Rw hasta 46 dB
» Permeabilidad al aire
(UNE-EN 12207) Clase 4
» Estanqueidad al agua
(UNE-EN 12208) Clase E1950
» Resistencia al viento
(UNE-EN 12210) Clase C5
Ensayo de referencia AEV 1,23 x 1,48 m / 2 hojas












