COR 80 Hoja Oculta








- Descripción
- Datos técnicos
- Ensayos
Descripción
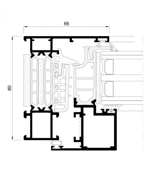
Elegante diseño de líneas rectas en el que se oculta la hoja tras el marco, maximizando así la superficie acristalada y la entrada de luz. Todo ello, acompañado de un gran rendimiento térmico y acústico impulsado por la rotura de puente térmico de 45 mm y una capacidad de acristalamiento de hasta 51 mm que pemite la instalación de vidrios triples.
Posibilidades
» Herraje de seguridad
» Herraje oculto
» Drenaje oculto
» Manilla oculta
Datos técnicos
» Acristalamiento
Máx. 51 mm
Mín. 36 mm
» Posibilidades de apertura
Apertura interior
Practicable
Oscilobatiente
Deslizante paralela
Abatible
» Secciones
Marco 80 mm
Hoja 80 mm
» Espesor de perfilería
Ventana 1,9 mm
» Longitud varilla de poliamida
45 mm
» Dimensiones máx. hoja
Solución estándar
Ancho (L) 1300 mm
Alto (H) 2400 mm
Herraje HD (Apertura practicable)
Ancho (L) 1200 mm
Alto (H) 3500 mm
» Peso máx. hoja
160 Kg
Consultar peso y dimensiones máximas según tipología
» Acabados
Posibilidad bicolor
Lacado colores (RAL, moteados y rugosos)
Lacado imitación madera
Lacado antibacteriano
Anodizado
Ensayos
» Transmitancia
Uw ≥ 0,71 (W/m²K)
Consultar tipología, dimensión y vidrio
» Aislamiento acústico
Rw hasta 46 dB
» Permeabilidad al aire
(UNE-EN 12207) Clase 4
» Estanqueidad al agua
(UNE-EN 12208) Clase E1650
» Resistencia al viento
(UNE-EN 12210) Clase C5
Ensayo de referencia AEV 1,23 x 1,48 m / 2 hojas












