COR 70 Industrial








- Descripción
- Datos técnicos
- Ensayos
Descripción
Este sistema abisagrado de 70 mm de profundidad ofrece un gran rendimiento térmico y acústico combinado con una fabricación muy sencilla, por eso se ha convertido en una de las series más demandas para ventanas, puertas y balconeras de aluminio.
Posibilidades
» Herraje de seguridad
» Herraje oculto
» Drenaje oculto
» Accesibilidad
» Estor integrado junquillo
Datos técnicos
» Acristalamiento
Máx. 63 mm
Mín. 6 mm
» Posibilidades de apertura
Apertura interior
Practicable
Oscilobatiente
Deslizante paralela
Abatible
Apertura exterior
Practicable
Proyectante deslizante
Pivotante oculta de eje horizontal y vertical
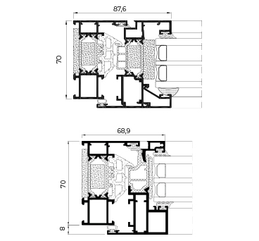
» Secciones
Cor 70 Industrial:
Marco 70 mm
Hoja 78 mm
Cor 70 Industrial Hoja Junquillo Metálico:
Marco 70 mm
Hoja 78 mm
» Espesor de perfilería
Ventana 1,5 mm
Puerta 1,7 mm
» Longitud varilla de poliamida
De 32 - 35 mm
» Dimensiones máx. hoja
Ancho (L) 1500 mm
Alto (H) 2600 mm
» Peso máx. hoja
160 Kg
» Posibilidades estéticas
Hoja: recta / Junquillo: recto y curvo
Consultar peso y dimensiones máximas según tipología
» Acabados
Posibilidad bicolor
Lacado colores (RAL, moteados y rugosos)
Lacado imitación madera
Lacado antibacteriano
Anodizado
Ensayos
» Transmitancia
Cor 70 Industrial: Uw ≥ 0,76 (W/m²K)
Cor 70 Industrial Hoja Junquillo Metálico: Uw ≥ 0,86 (W/m²K)
» Aislamiento acústico
Rw hasta 44 dB
» Permeabilidad al aire
(UNE-EN 12207) Clase 4
» Estanqueidad al agua
(UNE-EN 12208) Clase E1800
» Resistencia al viento
(UNE-EN 12210) Clase C5
» Resistencia a la efracción
Grado RC2 (WK2)
» Ensayo de seguridad PAS24
Apto
» Certificación DTA de laboratorio CSTB
Avis technique - Ref. 6/17-2363
» Certificación ATG
Ref. 3204
Ensayo de referencia AEV 1,23 x 1,48 m / 2 hojas
Ensayo de seguridad PAS24 1,100 x 2,400 m / 1 hoja
Ensayo de efracción 1,47 x 2,52 m / 1 hoja con herraje EVO SECURITY












