COR 70 Hoja oculta C16 ST








- Descripción
- Datos técnicos
- Ensayos
Descripción
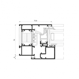
Sistema abisagrado de hoja oculta compatible con cualquier herraje de canal 16 estándar. Muestra un atractivo diseño basado en la ocultación de la hoja tras el marco, reduciendo la sección vista de aluminio hasta los 73,8 mm. De este modo, se consigue una superficie acristalada que puede llegar al 85 % del vidrio total de la ventana, facilitando así la entrada de luz en el interior de las estancias. Su estética vanguardista se completa con la posibilidad de insertar drenaje y bisagras ocultas.
Posibilidades
» Herraje de seguridad
» Herraje oculto
» Drenaje oculto
Datos técnicos
» Acristalamiento
Fijo máx. 40 mm, Mín. 27 mm
Ventana máx. 38 mm, Mín. 24 mm
» Posibilidades de apertura
Apertura interior
Practicable
Oscilobatiente
Abatible
» Secciones
Marco 70 mm
Hoja 70 mm
» Espesor de perfilería
Ventana 1,6 mm
» Longitud varilla de poliamida
35 mm
» Dimensiones máx. hoja
Ancho (L) 1300 mm
Alto (H) 2400 mm
» Peso máx. hoja
150 Kg
Consultar peso y dimensiones máximas según tipología
» Acabados
Posibilidad bicolor
Lacado colores (RAL, moteados y rugosos)
Lacado imitación madera
Lacado antibacteriano
Anodizado
Ensayos
» Transmitancia
Uw ≥ 1,0 (W/m2K)
» Aislamiento acústico
Rw hasta 45 dB
» Permeabilidad al aire
Clase 4
» Estanqueidad al agua
Clase E1200
» Resistencia al viento
Clase C5
» Certificación DTA de laboratorio CSTB
Avis technique - Ref. 6/17-2363
Ensayo de referencia AEV 1,23 x 1,48 m / 2 hojas












