COR 70 C16 ST








- Descripción
- Datos técnicos
- Ensayos
Descripción
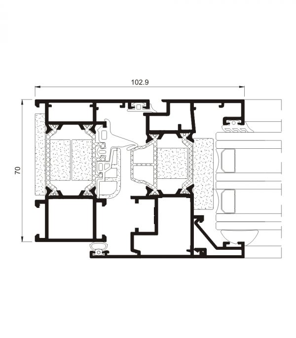
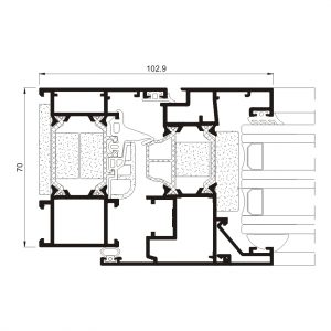
Sistema abisagrado de 70 mm de profundidad de marco compatible con cualquier herraje de canal 16 estándar. Presenta una rotura de puente térmico de 35 mm en marco y 30 mm en hoja, ofreciendo un gran rendimiento térmico y acústico.
Posibilidades
» Herraje de seguridad
» Herraje oculto
» Drenaje oculto
» Accesibilidad
Datos técnicos
» Acristalamiento
Máx. 55 mm
Mín. 15 mm
» Posibilidades de apertura
Apertura interior
Practicable
Oscilobatiente
Osciloparalela
Abatible
Plegable
Apertura exterior
Practicable (puerta)
» Secciones
Marco 70 mm
Hoja 78 mm
» Espesor de perfilería
Ventana 1,5 mm
Puerta 1,7 mm
» Longitud varilla de poliamida
Marco 35 mm
Hoja 30 mm
» Dimensiones máx. hoja
Ancho (L) 1500 mm
Alto (H) 2600 mm
» Peso máx. hoja
150 Kg
» Posibilidades estéticas
Hoja: recta / Junquillo: recto y curvo
Consultar peso y dimensiones máximas según tipología
» Acabados
Posibilidad bicolor
Lacado colores (RAL, moteados y rugosos)
Lacado imitación madera
Lacado antibacteriano
Anodizado
Ensayos
» Transmitancia
Uw ≥ 0,9 (W/m2K)
» Aislamiento acústico
Rw hasta 46 dB
» Permeabilidad al aire
Clase 4
» Estanqueidad al agua
Clase E1500
» Resistencia al viento
Clase C5
» Certificación DTA de laboratorio CSTB
Avis technique - Ref. 6/17-2363
Ensayo de referencia AEV 1,23 x 1,48 m / 2 hojas












