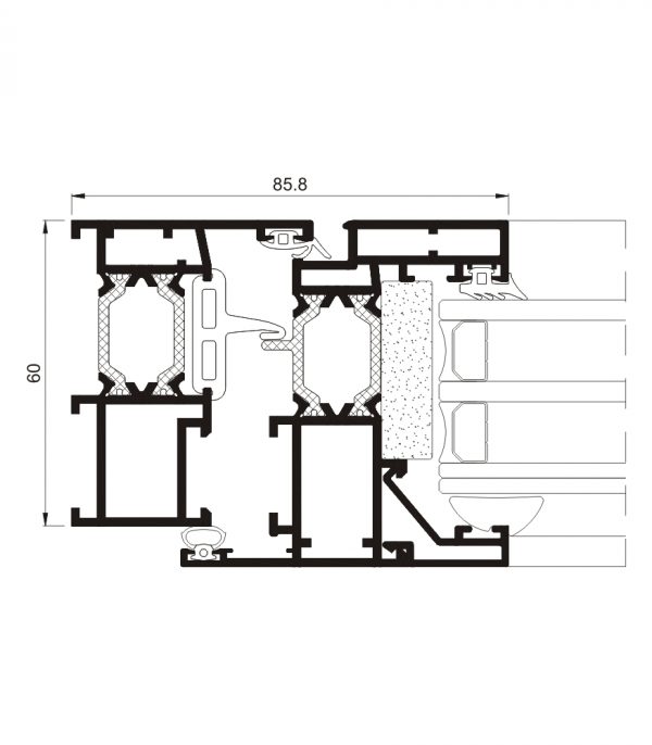
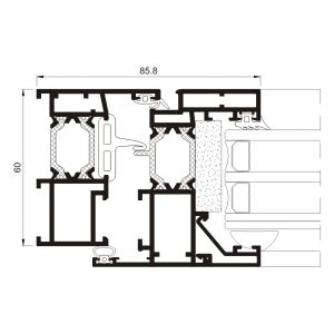
COR 60






- Descripción
- Datos técnicos
- Ensayos
Descripción
Sistema abisagrado de 60 mm de profundidad de marco, dotado con poliamidas de 24 mm, que ofrece un destacado confort térmico y acústico, logrando una atenuación del ruido de hasta 48 dB.
Posibilidades
» Herraje de seguridad
» Herraje oculto
» Accesibilidad
Datos técnicos
» Acristalamiento
Máx. 46 mm
Mín. 5 mm
» Posibilidades de apertura
Apertura interior
Practicable
Oscilobatiente
Deslizante paralela
Abatible
Apertura exterior
Practicable
Proyectante deslizante
Pivotante oculta de eje horizontal y vertical
» Secciones
Marco 60 mm
Hoja 68 mm
» Espesor de perfilería
Ventana 1,6 mm
Puerta 1,6 mm
» Longitud varilla de poliamida
24 mm
» Dimensiones máx. hoja
Ancho (L) 1500 mm
Alto (H) 2600 mm
» Peso máx. hoja
160 Kg
» Posibilidades estéticas
Hoja: recta o curva / Junquillo: recto y curvo
Consultar peso y dimensiones máximas según tipología
» Acabados
Posibilidad bicolor
Lacado colores (RAL, moteados y rugosos)
Lacado imitación madera
Lacado antibacteriano
Anodizado
Ensayos
» Transmitancia
Uw ≥ 1,0 (W/m2K)
Consultar tipología, dimensión y vidrio
» Aislamiento acústico
Rw hasta 48 dB
» Permeabilidad al aire
(UNE-EN 12207) Clase 4
» Estanqueidad al agua
(UNE-EN 12208) Clase E1350
» Resistencia al viento
(UNE-EN 12210) Clase C5
Ensayo de referencia AEV 1,20 x 1,16 m / 2 hojas












