COR 3000








- Descripción
- Datos técnicos
- Ensayos
Descripción
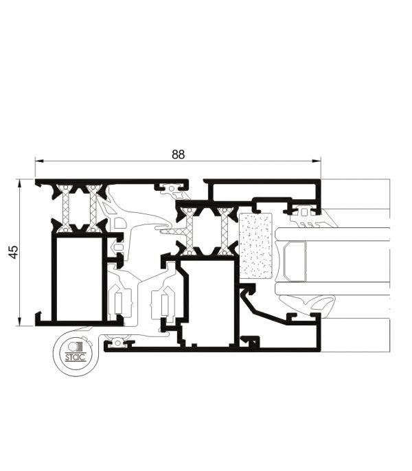
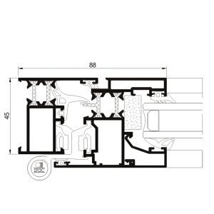
Serie abisagrada de 45 mm de profundidad con una rotura de puente térmico de 14,6 mm. Se trata de un sistema versátil, para climas suaves, con una gran variedad de posibilidades de apertura.
Posibilidades
» Herraje de seguridad
» Herraje oculto
Datos técnicos
» Acristalamiento
Máx. 31 mm
Mín. 3 mm
» Posibilidades de apertura
Apertura interior
Practicable
Oscilobatiente
Deslizante paralela
Abatible
Apertura exterior
Practicable
Proyectante deslizante
Pivotante de eje horizontal o vertical
» Secciones
Marco 45 mm
Hoja 53 mm
» Espesor de perfilería
Ventana 1,5 mm
Blaconera 1,7 mm
» Longitud varilla de poliamida
14,6 mm
» Dimensiones máx. hoja
Ancho (L) 1500 mm
Alto (H) 2400 mm
» Peso máx. hoja
120 Kg
» Posibilidades estéticas
Hoja: recta o curva / Junquillo: recto y curvo
Consultar peso y dimensiones máximas según tipología
» Acabados
Posibilidad bicolor
Lacado colores (RAL, moteados y rugosos)
Lacado imitación madera
Lacado antibacteriano
Anodizado
Ensayos
» Transmitancia
Uw ≥ 1,3 (W/m2K)
Consultar tipología, dimensión y vidrio
» Aislamiento acústico
Rw hasta 46 dB
» Permeabilidad al aire
(UNE-EN 12207) Clase 4
» Estanqueidad al agua
(UNE-EN 12208) Clase 9A
» Resistencia al viento
(UNE-EN 12210) Clase C5
Ensayo de referencia AEV 1,18 x 1,18 m / 2 hojas












