COR 2000








- Descripción
- Datos técnicos
- Ensayos
Descripción
Sistema abisagrado de canal europeo con una capacidad de acristalamiento de 31 mm. Su espesor de perfilería, 1,5 mm en la versión de ventana y 1,7 mm en la de puerta, le confiere una excepcional rigidez y durabilidad.
Posibilidades
» Herraje de seguridad
» Herraje oculto
Datos técnicos
» Acristalamiento
Máx. 31 mm
Mín. 3 mm
» Posibilidades de apertura
Apertura interior
Practicable
Oscilobatiente
Deslizante paralela
Abatible
Apertura exterior
Practicable
Proyectante deslizante
Pivotante de eje horizontal o vertical
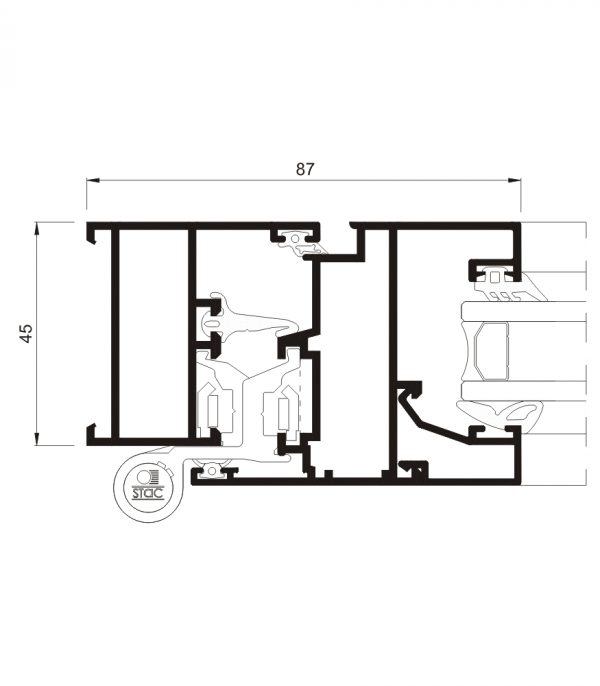
» Secciones
Marco 45 mm
Hoja 53 mm
» Espesor de perfilería
Ventana 1,5 mm
Blaconera 1,7 mm
» Dimensiones máx. hoja
Ancho (L) 1500 mm
Alto (H) 2400 mm
» Peso máx. hoja
120 Kg
» Posibilidades estéticas
Hoja: recta o curva / Junquillo: recto y curvo
Consultar peso y dimensiones máximas según tipología
» Acabados
Posibilidad bicolor
Lacado colores (RAL, moteados y rugosos)
Lacado imitación madera
Lacado antibacteriano
Anodizado
Ensayos
» Transmitancia
Uw ≥ 1,8 (W/m2K)
Consultar tipología, dimensión y vidrio
» Aislamiento acústico
Rw hasta 39 dB
» Permeabilidad al aire
(UNE-EN 12207) Clase 4
» Estanqueidad al agua
(UNE-EN 12208) Clase 9A
» Resistencia al viento
(UNE-EN 12210) Clase C5
Ensayo de referencia AEV 1,20 x 1,18 m / 2 hojas












