Balconera Mediterránea








- Descripción
- Datos técnicos
- Ensayos
Descripción
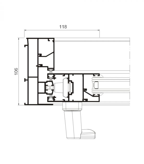
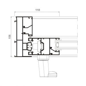
Ventana balconera corredera monocarril o bicarril con fijos y hojas.
Presenta carril oculto en la zona fija y una estética recta en marco y hoja.
Gracias a su máximo hueco libre de acristalamiento de 30 mm, este sistema puede garantiza un elevado grado de insonorización.
Presenta una versión GALANDAGE diseñada para posibilitar una apertura integral del hueco al ocultar totalmente las hojas en la cámara del muro de obra. Se consigue así una superficie de apertura del 100%.
Datos técnicos
» Acristalamiento
Máx. 30 mm
Mín. 4 mm
» Posibilidades de apertura
Corredera
» Secciones
Corredera
Monocarril (hoja + fijo), bicarril y tricarril
Galandage
» Espesor de perfilería
Balconera 1,5 mm
» Dimensiones máx. hoja
Ancho (L) 2200 mm
Alto (H) 2600 mm
» Peso máx. hoja
240 Kg
Consultar peso y dimensiones máximas según tipología
» Acabados
Posibilidad bicolor
Lacado colores (RAL, moteados y rugosos)
Lacado imitación madera
Lacado antibacteriano
Anodizado
Ensayos
» Transmitancia
Uw ≥ 2,1 (W/m2K)
Consultar tipología, dimensión y vidrio
» Aislamiento acústico
Rw hasta 35 dB
» Permeabilidad al aire
(UNE-EN 12207) Clase 3
» Estanqueidad al agua
(UNE-EN 12208) Clase 8A
» Resistencia al viento
(UNE-EN 12210) Clase C4
Ensayo de referencia AEV 1,49 x 1,24 m / 1 hoja + 1 fijo












