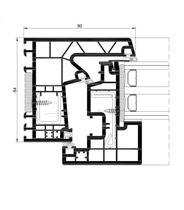
A 84 Hoja oculta Passivhaus








- Descripción
- Datos técnicos
- Ensayos
Descripción
Ventana abisagrada de PVC con estética minimalista y certificación Passivhaus para la categoría warm-temperate. Presenta una sección vista de tan solo 90 mm y ofrece la posibilidad de nudo central reducido de la misma medida. Este sistema de 84 mm de profundidad y perfilería de 6 cámaras combina su elegante diseño con un excelente rendimiento térmico, con una transmitancia Uf desde solo 1,05 W/m²K.
Posibilidades
» Herraje oculto
» Herraje de seguridad
Datos técnicos
» Acristalamiento
Máx. 46,5 mm
Mín. 32 mm
» Posibilidades de apertura
Apertura interior
Practicable
Oscilobatiente
Abatible
» Secciones
Marco 84 mm
Hoja 84 mm
» Dimensiones máx. hoja
Ancho (L) 400-1400 mm
Alto (H) 450-2500 mm
» Peso máx. hoja
130 Kg Ventana / Balconera
Consultar peso y dimensiones máximas según tipología
» Acabados
Blanco
Color
Bicolor
Imitación madera
Metalizado
Ensayos
» Transmitancia
Uf ≥ 1,05 (W/m²K)
» Aislamiento acústico
Rw hasta 46 dB
» Permeabilidad al aire
(UNE-EN 12207) Clase 4
» Estanqueidad al agua
(UNE-EN 12208) Clase E2250
» Resistencia al viento
(UNE-EN 12210) Clase C5
Ensayo de referencia AEV 1,23 x 1,48 m / 2 hojas












