5000 Corredera








- Descripción
- Datos técnicos
- Ensayos
Descripción
Sistema de doble ventana corredera con rotura de puente térmico y guía de persiana intercalada entre las hojas exteriores e interiores.
Sistema de corredera que integra la guía de persiana en el marco lateral. También disponible en vesión estándar.
Datos técnicos
» Acristalamiento
Máx. 18 mm
Mín. 4 mm
» Posibilidades de apertura
Corredera
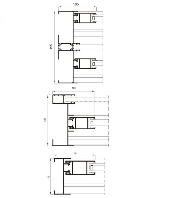
» Secciones
Corredera doble: marco 199 mm, hoja 28 mm
Corredera integral: marco 121 mm, hoja 28 mm
Corredera estándar: marco 73 mm, hoja 28 mm
» Espesor de perfilería
Ventana 1,5 mm
» Longitud varilla de poliamida
16 y 24 mm
» Dimensiones máx. hoja
Ancho (L) 1600 mm
Alto (H) 2600 mm
» Peso máx. hoja
80 Kg
Consultar peso y dimensiones máximas según tipología
» Acabados
Posibilidad bicolor
Lacado colores (RAL, moteados y rugosos)
Lacado imitación madera
Lacado antibacteriano
Anodizado
Ensayos
» Transmitancia
Corredera doble: Uw ≥ 1,3 (W/m2K)*
Corredera integral: Uw ≥ 2,3 (W/m2K)**
Corredera estándar: Uw ≥ 2,3 (W/m2K)**
Consultar tipología, dimensión y vidrio
» Aislamiento acústico
Corredera doble: Rw hasta 40 dB*
Corredera integral: Rw hasta 34 dB**
Corredera estándar: Rw hasta 34 dB**
» Permeabilidad al aire
(UNE-EN 12207) Clase 3
» Estanqueidad al agua
(UNE-EN 12208) Clase 8A
» Resistencia al viento
(UNE-EN 12210) Clase C5
*Ensayo de referencia AEV 1,25 x 1,50 m / 2 hojas
**Ensayo de referencia AEV 1,20 x 1,20 m / 2 hojas












