4900 Corredera HI








- Descripción
- Datos técnicos
- Ensayos
Descripción
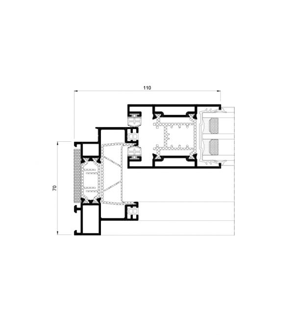
Ventana corredera estándar con prestaciones de abisagrada. Ofrece un gran aislamiento térmico y acústico favorecido por una capacidad de acristalamiento de hasta 36 mm y una rotura de puente térmico de 34 mm. Presenta nudo central de 35 mm y líneas rectas, permitiendo el cruce de hojas gracias a la manilla integrada con cierre multipunto.
Posibilidades
» Accesibilidad
Datos técnicos
» Acristalamiento
Máx. 36 mm
Mín. 24 mm
» Posibilidades de apertura
Corredera
Monocarril (hoja + fijo), 2, 3 y 4 Carriles
Galandage
Posibilidad de apertura en esquina y rincón a 90º sin parteluz
» Secciones
Marco 60, 70, 89, 120, 125, 130 mm
126, 145 mm tricarril
201 mm cuatro carriles
Hoja 48 mm
» Espesor de perfilería
Ventana 1,6 mm
» Longitud varilla de poliamida
34 mm
» Dimensiones máx. hoja
Ancho (L) 2200 mm
Alto (H) 3000 mm
» Peso máx. hoja
240 Kg
Consultar peso y dimensiones máximas según tipología
» Acabados
Posibilidad bicolor
Lacado colores (RAL, moteados y rugosos)
Lacado imitación madera
Lacado antibacteriano
Anodizado
Ensayos
» Transmitancia
Uw ≥ 1,2 (W/m2K)
Consultar tipología, dimensión y vidrio
» Aislamiento acústico
Rw hasta 40 dB
» Permeabilidad al aire
(UNE-EN 12207) Clase 4
» Estanqueidad al agua
(UNE-EN 12208) Clase 7A
» Resistencia al viento
(UNE-EN 12210) Clase C5
» Certificación DTA de laboratorio CSTB
Avis technique
Ensayo de referencia AEV 1,80 x 2,20 m / 2 hojas











